Advance Project - мы создаем технологические проекты предприятий питания, пищевых производств и отелей,
чтобы вы сэкономили на обустройстве и эксплуатации
и как можно быстрее вышли на прибыль

Мы спроектируем для вас производство готовой еды, прибыльного ресторана, столовой до 3000 питающихся, кафе-кондитерской с собственными цехами, корнеров, магазинов, перерабатывающих предприятий, фабрик-кухни федеральных сетей и отелей 3*-4*-5*

Advance Project - мы создаем технологические проекты предприятий питания и пищевых производств, чтобы
вы сэкономили на обустройстве
и эксплуатации и как можно
быстрее вышли на прибыль
Работаем по всей России
Ваш отель без ошибок!
Технологический проект гостиницы для новых концепции и существующих отелей. Аудит.
для бизнеса
23
года на рынке технологии
128
проектов для кафе и ресторанов
1200 млн
рублей сэкономленных инвестиций
17
отельных проектов
95%
предприятий и бизнесов работают до сих пор
на 15%
увеличилась доходность проектов благодаря нашим технологическим решениям
ᅠ Вот такие проблемы можно получить, сэкономив на грамотном проектировании
Advance Project - создаем технологические проекты предприятий питания и пищевых производств
Нажмите на цифру
Нет места для работы на тепловом оборудовании, даже для одного повара.
Нет места для грязной посуды, задержки, проблемы с гигиеной.
Неудобные вспомогательные помещения, проблемы с гигиеной!
Мало рабочих поверхностей.
Заготовочный цех расположен вне потока, перед раздачей! Это нарушение!
Нет раздачи! Официанты на кухне, проблема с отдачей гостю.
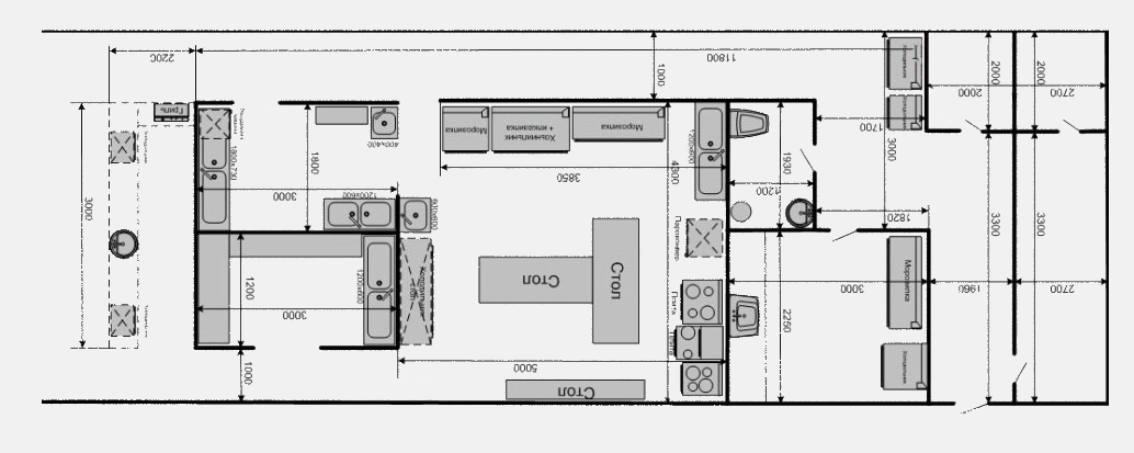
ᅠ Как проектирование кухни поможет вашему бизнесу
01
Правильное зонирование помещения поможет грамотно выстроить рабочий процесс
Сотрудники не тратят время на лишние движения и перемещения, работа идет быстрее
02
В продуманном пространстве можно реализовать все задачи кухни даже в небольшом помещении
На фото — пример компактного хранения стекла в кассетах
03
У вас есть четкое понимание бюджета, который понадобится на полную подготовку помещения
Проектирование кухни позволяет сэкономить деньги инвесторов и подобрать решения, которые сократят расходы на подготовку и эксплуатацию помещения.
Профессиональное технологическое проектирование - ключ к успеху вашего бизнеса
ᅠ Чем мы можем помочь
Снизим затраты при подготовке помещения
Продумаем проект помещения с учетом особенностей здания. Учтем все возможные ограничения, в т. ч. в части электрики, сантехники и вентиляции и подберем выгодные решения.
Сосчитаем бюджет
Проведем аудит и определим сумму, которая вам понадобится, чтобы довести помещение до конечного вида. Поможем увидеть скрытые расходы и подскажем, как можно сэкономить.
Оптимизируем расходы на сотрудников
Спроектируем кухню так, чтобы она выполняла задачи на нужном уровне даже при минимальном штате. Сотрудники не будут тратить время на лишние передвижения и смогут справляться со своими задачами быстрее.
Подберем оборудование под размеры и функционал помещения
Составим спецификацию и подберем подходящие и наиболее выгодные модели оборудования с учетом затрат на эксплуатацию.
Гарантируем соблюдение требований СанПин и Роспотребнадзора
Продумаем полезную площадь
Продумаем помещение так, чтобы соблюсти все нормы без потерь для бюджета и оптимальной эксплуатации пространства.
Сведем к минимуму неиспользуемые пространства. Поможем лаконично вписать все необходимые рабочие поверхности и оборудование.
Оценка помещения для бизнеса
Стоимость: от 5 000 ₽
Срок: 1 день
01
Advance Project - создаем технологические проекты предприятий питания и пищевых производств
Проект современного магазина
Стоимость: от 50 000 ₽
Срок: 2 недели
02
Advance Project - создаем технологические проекты предприятий питания и пищевых производств
Проект заготовочного цеха по доставке еды
Стоимость: 70 000 ₽-200 000 ₽
Срок: 1 неделя
03
Advance Project - создаем технологические проекты предприятий питания и пищевых производств
Проект кафе с универсальным меню
Стоимость: от 30 000 ₽
Срок: 3 дня
04
Advance Project - создаем технологические проекты предприятий питания и пищевых производств
Проект фабрики кухни по производству готовой еды
Стоимость: 150 000 ₽–1 500 000 ₽
Срок: 2 недели
05
Advance Project - создаем технологические проекты предприятий питания и пищевых производств
Проект ресторана, ресторанного комплекса до 7000 кв.м.
Стоимость: от 60 000 ₽
Срок: 1 неделя
06
Advance Project - создаем технологические проекты предприятий питания и пищевых производств
Проект столовой для экономии аренды
Стоимость: по договорённости
Срок: 3 дня
07
Advance Project - создаем технологические проекты предприятий питания и пищевых производств
ᅠ Услуги, которые мы предоставляем
Технологический проект отеля (лучшие практики)
Стоимость: от 300 рублей/ м²
Срок: от 20 дней
08
Advance Project - создаем технологические проекты предприятий питания и пищевых производств

Оставьте заявку на бесплатную консультацию

Заполните форму и мы свяжемся с вами в ближайшее время для обсуждения проекта
Нажимая кнопку «Оставить заявку», вы соглашаетесь с политикой конфиденциальности
Небольшие предприятия питания от 60 до 750 кв.м.
Задача:
Повысить окупаемость предприятия, продумать помещение так, чтобы уместилось все необходимое оборудование, а сотрудникам было удобно работать.

Результат:
Окупаемость от 11 месяцев до 5 лет. Привлекательный для инвесторов недорогой бизнес.
Самый популярный формат
Фабрика-кухня готовой еды на 20000 обедов и ужинов, 2500 кв.м.
Что сделали:
За 10 дней разработали технологический проект. На его основании за 25 дней сделали остальные разделы (вентиляция, электрика, водоснабжение и т. д.).

Результат:
Благодаря грамотному технологическому проекту заказчик смог оперативно подготовить помещение и сэкономить деньги инвесторов.
Ресторанный комплекс гостиницы «Москва» в Санкт-Петербурге. 6500 кв.м.
Ежедневно до 5500 рационов в режиме шведский стол (завтрак, обед, ужин с 7 утра до 23 часов вечера). 45 работников в смену.

Результат:
За счет продуманного сокращения площади производства сделали еще два обеденных зала. Это дало прирост выручки в 40%.
Режим шведский стол
Кондитерская фабрика Москва для сетевых магазинов 2020-2021 гг.
Задача:
Организовать лаконичное и эффективное промышленное производство на небольшой площади

Результат:
Сэкономили деньги инвесторов и запустили продуманную технологию в бывшем заводском цеху с учетом ограничений на электроэнергию и сняли вопросы вентиляции.
Москва, 2021 г.
Москва, 2021 г.
ᅠ Наши проекты
ᅠ Клиенты, которые нам доверяют
Москва, 2021 г.
ᅠ Отзывы
Наши публикации
Мы выступаем в качестве профессиональных экспертов и публикуем авторские статьи
для общего доступа
Made on
Tilda